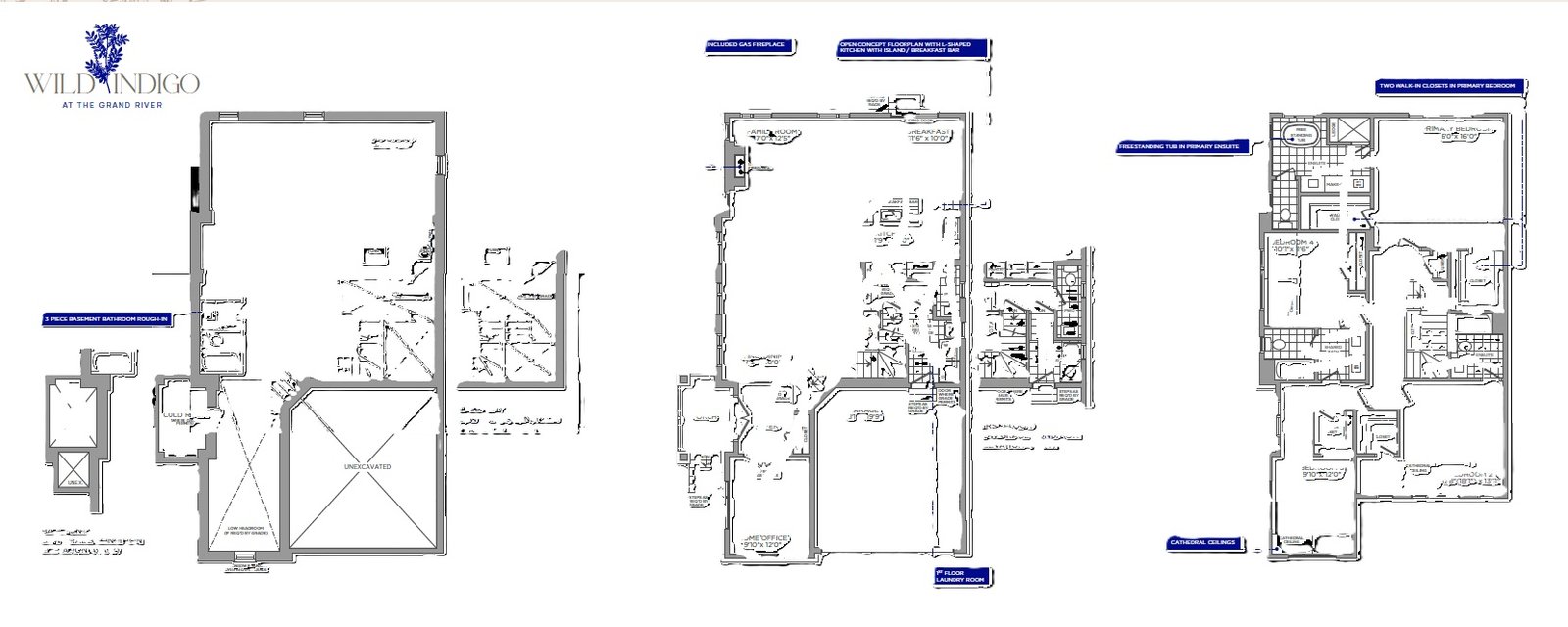
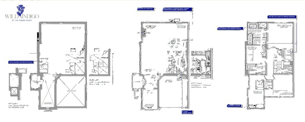
Wild Indigo Homes Breslau
Are you a Realtor*YesNo
You must check this box and submit your information to grant us permission to email you. You may unsubscribe at any time.
Δ